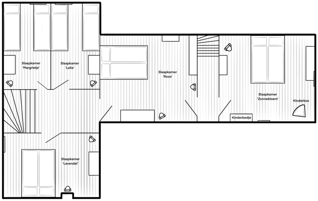
Op de eerste verdieping zijn vijf slaapkamers, alle met boxspring-bedden. In vier slaapkamers staan twee enkele bedden die ook tegen elkaar kunnen worden gezet. In de master bedroom (de Roos) staat een tweepersoonsbed met een kaptafel en een vaste kledingkast. Er zijn eenvoudig verplaatsbaar een kinderledikant en een kindercampingbed aanwezig waardoor er zelfs twee kleine kinderen kunnen slapen. In een slaapkamer (de Zonnebloem) ligt een plavuizen vloer; in de andere slaapkamers ligt een houten vloer.










